Facebook

Login

Close

Don't have an account?

Register
Call

Shenstone, Minerva Heights

Guide Price £649,995

4

Beds

2

Baths

2

reception

Save Save to shortlist

Floorplan Floorplan Print Street view
request a valuation

mortgage calculator


stamp duty calculator

Minerva Heights is a selection of 2, 3 & 4 bedroom homes now selling in Chichester. This stunning development will offer you the best of both worlds, with the nearby South Downs National Park, perfect for a weekend walk and the bustling city centre less than 2 miles away. Minerva Heights will soon become a sought after community, with a primary school and country park included in the plans. The Sales Office and Show Homes are open Friday & Saturday 10.30am-5.30pm. Viewings by appointment only Thursday, Sunday & Monday, call 01243 521833 to book a viewing.

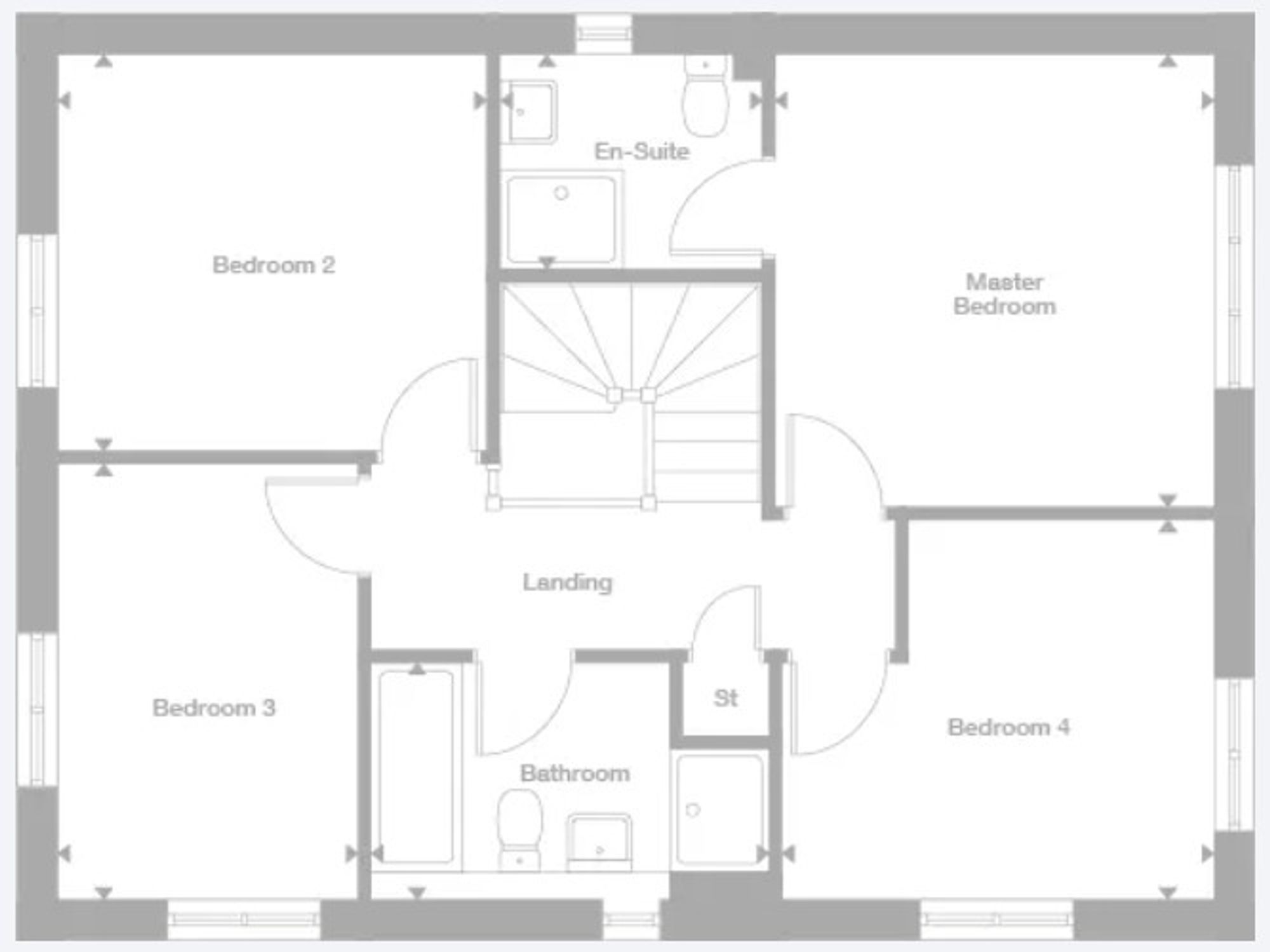
This beautifully designed four-bedroom home offers bright, flexible living spaces ideal for modern family life. The impressive open-plan kitchen and dining area is dual aspect, with elegant French doors opening onto the rear garden, creating a wonderful flow for everyday living and entertaining.

The spacious lounge is enhanced by a striking bay window, filling the room with natural light and providing a welcoming place to relax. A separate study offers the perfect solution for working from home or quiet study.

Upstairs, the principal bedroom benefits from a stylish en-suite, while two further bedrooms enjoy dual-aspect windows, resulting in an exceptionally light and uplifting atmosphere throughout the home. Completing the property are a garage and dedicated parking.

Priced at £649,995 with anticipated build completion June 2026.

NB External image is computer generated and for illustrative purposes only

Open plan kitchen dining with french doors to the rear garden

Spacious lounge with bay window

Separate study, ideal for working from home

En-suite to principal bedroom

Garage & Parking

Ready now!

READ MORE >

Minerva Heights Is Situated Just A Mile From The Centre Of Chichester, Famous For Its Magnificent Cathedral And The Celebrated Festival Theatre, Plus Bars, Restaurants And High Street Shopping. Just Half A Mile From The Development Are Local Shopping Facilities Including Convenience Stores, Post Office, Pharmacist, Family Butcher And More. There Are Numerous Leisure Activities To Be Found In The Area, Including Cinemas, Galleries, Swimming Pools And Gyms, Plus Of Course Motor Racing And Horse Racing At Nearby Goodwood And Fontwell Park. Opportunities For Outdoor Leisure Are Exceptional, With The Centurion Way Cycle Path Passing The Southern Edge Of The Development, Connecting With The South Coast Cycle Route For Long Distance Walking Or Cycling. Beautiful Beaches Can Be Found To The South Of The City And The South Downs National Park Will Be Found To The North, All Within Easy Reach Of Minerva Heights.

  • CHICHESTER
  • CHICHESTER
  • CHICHESTER

CHICHESTER Local office and area

One of the top places to live in the UK according to The Sunday Times (2013), Chichester has something for everyone. Elegant Georgian architecture sits alongside striking contemporary homes and a fabulous range of restaurants and shops, both independent and high street names including John Lewis....

Read about the local area

you may also be interested in...

10

10 REASONS TO BUY NEW

Discover choice and value, high quality design, superb specifications, no DIY to worry about, lower running costs and the peace of mind that warranties and guarantees bring.

Find out more

WHY REGISTER WITH US?

  • See new homes before anyone else
  • Save & compare homes you love
  • Hear about exclusive events & incentives

Register Now

latest news

Wishing you a very Merry Christmas from Henry Adams New Homes

As the year draws to a close, we would like to thank all of our developer clients and buyers for their continued trust and support throughout...

Read More

SEARCH NEW HOMES FOR SALE IN SUSSEX, SURREY & HAMPSHIRE

Taylor Mansfield

How can we help?

Whether you’re a buyer looking for a new home or a developer looking to market and sell new homes, we’d love to help you.

Call us on 01243 521833