Facebook

Login

Close

Don't have an account?

Register
Call

Plot 18, Sumners Field, Barns Green

Fixed Price £243,750

2

Beds

1

Baths

1

reception

Save Save to shortlist

Floorplan Floorplan Print Street view
request a valuation

mortgage calculator


stamp duty calculator

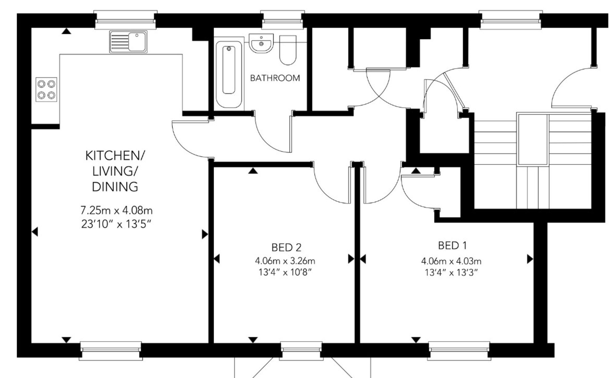
Sumners Field – Plot 18
Two Bedroom First Floor Apartment, Sumners Pond, Barns Green

This is the final remaining two-bedroom apartment at the highly sought-after Sumners Pond development in the popular village of Barns Green, ideally located near Horsham.

Plot 18 is a well-designed first-floor apartment offering bright, contemporary accommodation throughout. A spacious entrance hallway leads through to an impressive open-plan kitchen/living/dining room, providing an excellent space for both everyday living and entertaining. The modern kitchen is fitted with a range of quality units and fully integrated appliances, including an oven, hob and fridge freezer, complemented by stylish finishes and quality flooring throughout the apartment.

The principal bedroom is light and generously proportioned, benefitting from a fitted wardrobe, while the second bedroom offers flexibility for guests, home working or additional storage. The contemporary bathroom features a shower over the bath with attractive tiling to bathing areas. The property also benefits from allocated parking.

The home is available via the Landspeed Shared Purchase scheme, offering an affordable route to home ownership. Purchasers can buy 75% (£243,750) of the full market value (£325,000), with no rent or interest payable on the remaining 25%. A minimum deposit of 5% of the full market value is required.

Anticipated build completion: Spring 2026

Set within a desirable village setting, Sumners Pond combines modern living with easy access to local amenities, public houses, and the beautiful surrounding West Sussex countryside, while still offering convenient links to Horsham and beyond.

Eligibility criteria apply. Purchasers must live, work, or have close family connections within the Horsham District Council area and be unable to afford the full market value of the property.

For further information or to request an application form, please contact us.

Please contact us for details of the Reservation Fee and Terms & Conditions.

Estate Charge: 2 bed apartment £1,839.11 per home per annum (estimated).

Please note: Photos of the kitchen & Bathroom are of another Landspeed Home for illustrative purposes only.

Village Location

Shared ownership scheme at 75% with no rent of interest to pay on the remaining 25%

2 Parking Space

Vinyl flooring to kitchen area and bathroom

Carpets to bedroom and hallway

Integrated oven, hob, extractor hood and fridge/freezer

Space for Washing Machine

Removable cupboard for a Dishwasher

EPC to be advised

Council Tax banding is not set until after Legal Completion. For more details, please contact the Local Authority

READ MORE >

Barns Green is a popular West Sussex village offering a convenience store with post office, local amenities and a strong sense of community. Horsham town centre is just over a 10-minute drive away, providing a wide range of shops, supermarkets and leisure facilities. Sumners Fields is ideally positioned next to Sumners Ponds, a well-loved spot for countryside walks, lakeside dining and outdoor activities, with Southwater Country Park also nearby. The area is well served by schools, including Barns Green Primary within walking distance. Excellent transport links include easy access to the A24, Christ’s Hospital railway station just four minutes away with direct services to London Victoria, and Gatwick Airport within 30 minutes.

  • BILLINGSHURST
  • BILLINGSHURST
  • BILLINGSHURST

BILLINGSHURST Local office and area

The thriving village of Billingshurst has a welcoming community and a pretty high street with a useful range of shops and restaurants. A major attraction for families is The Weald Community School & Sixth Form which was judged by Ofsted to be outstanding in all areas (2013). ...

Read about the local area

you may also be interested in...

10

10 REASONS TO BUY NEW

Discover choice and value, high quality design, superb specifications, no DIY to worry about, lower running costs and the peace of mind that warranties and guarantees bring.

Find out more

WHY REGISTER WITH US?

  • See new homes before anyone else
  • Save & compare homes you love
  • Hear about exclusive events & incentives

Register Now

latest news

Wishing you a very Merry Christmas from Henry Adams New Homes

As the year draws to a close, we would like to thank all of our developer clients and buyers for their continued trust and support throughout...

Read More

SEARCH NEW HOMES FOR SALE IN SUSSEX, SURREY & HAMPSHIRE

Taylor Mansfield

How can we help?

Whether you’re a buyer looking for a new home or a developer looking to market and sell new homes, we’d love to help you.

Call us on 01243 521833